Kotly
Krbové kachle, pece
Krbové vložky
Palivá, dymovody, diely
Edilkamin H2OCEANO 15
Teplovodná krbová vložka
| |||||||
Edilkamin H2OCEANO 15
Teplovodná krbová vložka
Teplovodná krbová vložka Edilkamin H2OCEANO 15 - otvorená expanzná nádrž - je určená na vykurovanie objektu prostredníctvom teplej vody vyrábanej vo výmenníku ohniska, odkiaľ je pomocou čerpadla odvádzaná do jednotlivých radiátorov v celom dome.
Výkon výmenníka je maximálne 12,1 kW, v miestnosti, kde je vložka umiestnená zostáva výkon maximálne 2kW odovzdaný prostredníctvom sálania cez sklo ohniska a tepelným prúdením vzduchu v obostavbe. Dvierka vložky sú výsuvné hore i otváracie vľavo. Možnosť verzie aj s dochladzovacou slučkou.
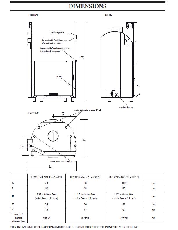
Technické údaje
| Výška | mm | 1350 |
| Šířka | mm | 740 |
| Hloubka | mm | 620 |
| Výkon jmenovitý min-max | kw | 5-14,8 |
| Výkon do vody | kw | 12,1 |
| Účinost | % | 80 |
| Obsah výměníku | l | 75 |
| Spotřeba dřeva min-max | kg/h | 1,5-4,5 |
| Průměr kouřovodu | mm | 180 |
| Vytápěný prostor max | m3 | 355 |
| Váha | kg | 240 |